Ref # 2403884
$267,025
Property Details
334 B 11, Ocean 16, B1
3 Beds
2 Baths
1 Covered Parking
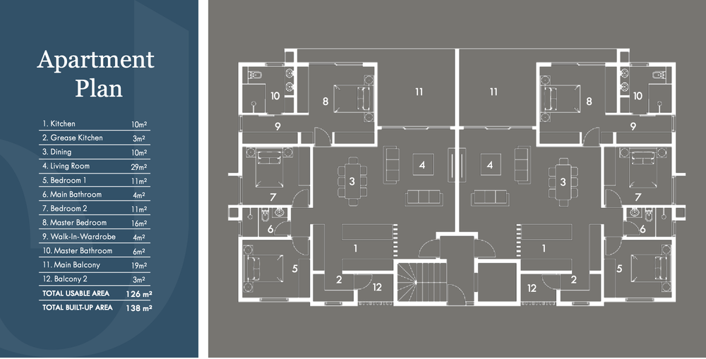
138m²

Discover exclusive island living in Pereybere's most coveted enclave, where endless summer days and sophisticated design create the ultimate tropical lifestyle.

PRIME PEREYBERE POSITIONING

Nestled in Mauritius's most desirable northern coastline, this development places you at the heart of it all. With year-round sunshine, pristine beaches on your doorstep, and seamless access to the island's finest attractions, this is tropical living without compromise.

ARCHITECTURAL EXCELLENCE

This boutique development features just 14 exclusive residences across two elegant blocks - 12 sophisticated apartments plus 2 stunning penthouses. Every home delivers an exceptional standard of contemporary island living.

SPACIOUS 3-BEDROOM DESIGN

Each residence boasts generous proportions with a luxurious master suite featuring private ensuite, two additional bedrooms sharing a designer bathroom, and expansive open-plan living areas that flow seamlessly to your private balcony. The sparkling communal pool provides the perfect backdrop for relaxation and entertaining.

DESIGNER INTERIORS

The thoughtfully curated interiors showcase clean contemporary lines and a sophisticated neutral palette, creating serene spaces that epitomize modern island elegance. European-standard kitchens combine sleek aesthetics with intelligent functionality - premium finishes, clever storage solutions, and intuitive design that adapts to your lifestyle.

THE COMPLETE PACKAGE

This isn't just a home - it's your gateway to the Mauritian dream. Wake up in paradise, live in luxury, and invest in one of the island's most sought-after addresses.

Island living elevated.

Private Storage

Property Features
Property Type
Apartment
Bedrooms
3
Bathrooms
2
Covered Parking
1
Floor Size
138m²
Living Area
2
Study
1
Costs and Terms
Levy
±$280
Available From
20 Oct 2027
Additional Information
Pets Allowed
No
Share this Property
Make an enquiry
Interested in this property? Please fill in your details below, and we will contact you as soon as possible.
By clicking on "submit" you agree to our privacy policy.
You may also be interested in these properties
$ 332,832
2
1
1
1
90m²
1,500m²
Apartment for sale in Pereybere
2-bedroom Apartment In Péreybère
Beachside island living in Péreybère, just 300m from the sand; first-floor, fully furnished SOLEIA II apartment with private storage, underground parking and two bedrooms.
$ 256,000
Development
1
1
1
77m²
2,000m²
Apartment for sale in Grand Bay Central
Discover An Elevated Way Of Living In The Heart Of Grand Baie
Resort-style island living above La Croisette in Grand Baie, with lagoon views and a 25m infinity pool on the landscaped residents' deck. Includes one-bedroom, one-bath and covered parking.
$ 255,117
Development
2
2
1
97m²
Apartment for sale in Grand Bay Central
Grand Bay - Premier Investment Opportunity
Enjoy Grand Baie island living steps from Mont-Choisy and Pereybère, with resort-style pool, aqua-gym and spa areas — spacious 97 m² two-bedroom apartment with parking.
en