Ref # 2403946
$533,975
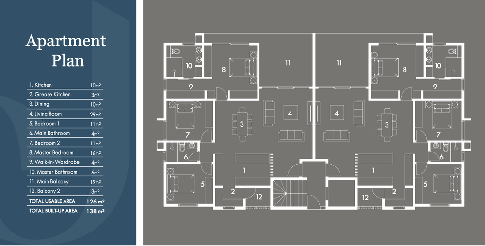
Property Details
B 13 Royal Road, Ocean 16, Ptha7
3 Beds
3 Baths
2 Covered Parkings
257m²

Discover the pinnacle of island living in Pereybere's most coveted enclave

THE ULTIMATE PEREYBERE ADDRESS

Crowning this exclusive 14-residence development, just two extraordinary penthouses represent the absolute finest in Mauritian luxury living. These aren't just homes - they're private sanctuaries that redefine tropical sophistication.

WRAPAROUND ROOFTOP LIFESTYLE

Your amazing rooftop wraps the entire penthouse, creating an unparalleled outdoor living experience. This distinctive feature transforms everyday moments into extraordinary ones - morning coffee with sunrise views, sunset cocktails with friends, or intimate dinners under the stars. This is entertaining elevated to an art form.

SEAMLESS INDOOR-OUTDOOR LUXURY

The open living spaces flow effortlessly to expansive terraces where breathtaking views await at every turn. These thoughtfully designed spaces become your inviting escape for sharing life's finest moments, where stunning panoramic vistas provide the perfect backdrop for sophisticated lounging areas.

MAXIMIZED VOLUME & LIGHT

Every detail has been carefully considered to maximize volume and light throughout these spectacular residences. The intelligent layout creates a sense of grandeur while maintaining the intimate luxury that defines island living at its finest.

PANORAMIC PERFECTION

The distinctive panoramic views are simply unmatched - endless ocean horizons, tropical landscapes, and Pereybere's pristine coastline stretch as far as the eye can see. These are the views that make Mauritius legendary.

EXCLUSIVE AVAILABILITY

With only two penthouses in this boutique collection, this represents a rare opportunity to secure the most prestigious address in Pereybere.

Private Storage

Property Features
Property Type
Apartment
Bedrooms
3
Bathrooms
3
Covered Parking
2
Floor Size
257m²
Living Area
2
Study
1
Costs and Terms
Levy
±$280
Available From
01 Aug 2027
Additional Information
Pets Allowed
No
Share this Property
Make an enquiry
Interested in this property? Please fill in your details below, and we will contact you as soon as possible.
By clicking on "submit" you agree to our privacy policy.
You may also be interested in these properties
$ 565,000
2
2
2
136m²
Apartment for sale in Grand Bay Central
Destination Mauritius Presents 2beach Collective — Where Lifestyle Meets Lucrative Returns: A Clever, Airbnb‐friendly Product
Enjoy island living on Péreybère’s coastal road — stroll to beaches, cafés and nightlife. Dual-key modular apartments offer rental flexibility; two-bed, two-bath layouts ideal for investors.
$ 559,000
Video Tour
Reduced
2
2
2
137m²
Apartment for sale in Grand Bay Central
Les Résidences De Mont Choisy — Live The Island Dream — Where Everyday Luxury Meets Effortless Living.
Embrace island wellness living in Mont Choisy Smart City, steps from Grand Baie dining and beaches; move-in ready two-bedroom apartments with private terrace and dedicated pool option.
$ 482,000
Development
2
2
1
111m²
2,000m²
Apartment for sale in Grand Bay Central
Discover An Elevated Way Of Living In The Heart Of Grand Baie
Live elevated island life above La Croisette in Grand Baie, with a resort-style residents' deck and 25-metre infinity pool. Two-bedroom, two-bath home with covered parking.
en